Description
Well maintained semi-furnished three-room apartment of approx. 64 m2 within walking distance of the City Plaza shopping center, with storage and balcony.
The apartment is lightly finished and has a modern interior and balcony. There external storage space of 8m2.
In the area nearby you’ll find many restaurants, shops, sports clubs, schools, theater and a cinema. Public transport and the roads are easily and quickly accessible in the immediate vicinity.
Layout
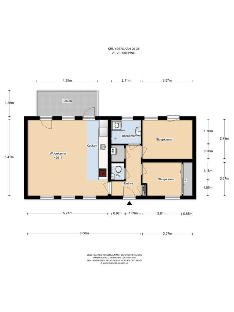
The house has a spacious living room, which makes it very light! There you’ll also find a modern open kitchen with built-in appliances; a fridge, freezer, gas stove with extractor hood, dishwasher and microwave/oven. You can enter the balcony from the living room. There are also 2 spacious bedrooms. One of the bedrooms has a large built-in wardrobe. In the bathroom you’ll find the walk-in shower and washing machine connection. The toilet is separate from the bathroom.
In short:
– For rent from March 1, 2022 for a period of at least 12 months
– Unfurnished
– Rent is excluding GWE, TV and internet
– Inc. storage room in basement
– This listing has energy label A
For more information, please contact our office in Utrecht via [email protected].























































