Description
Unfurnished 2 room apartment, located on the second floor, with storage and a large garage in the basement in the center of Zeist.
The apartment is very well maintained and has a new kitchen and a neat bathroom and toilet. All ceilings and walls are also painted.
Within walking distance of various facilities various shops, restaurants, library and theater / cinema. Convenient location in relation to various roads to the A12 and the A28, bus station Zeist and Driebergen-Rijsenburg train station.
There are parking spaces behind the apartment building for owners or visitors to the apartments. In addition, this apartment in the basement has its own storage room and large garage which is accessible from the inside of the building as well as through the garage overhead door.
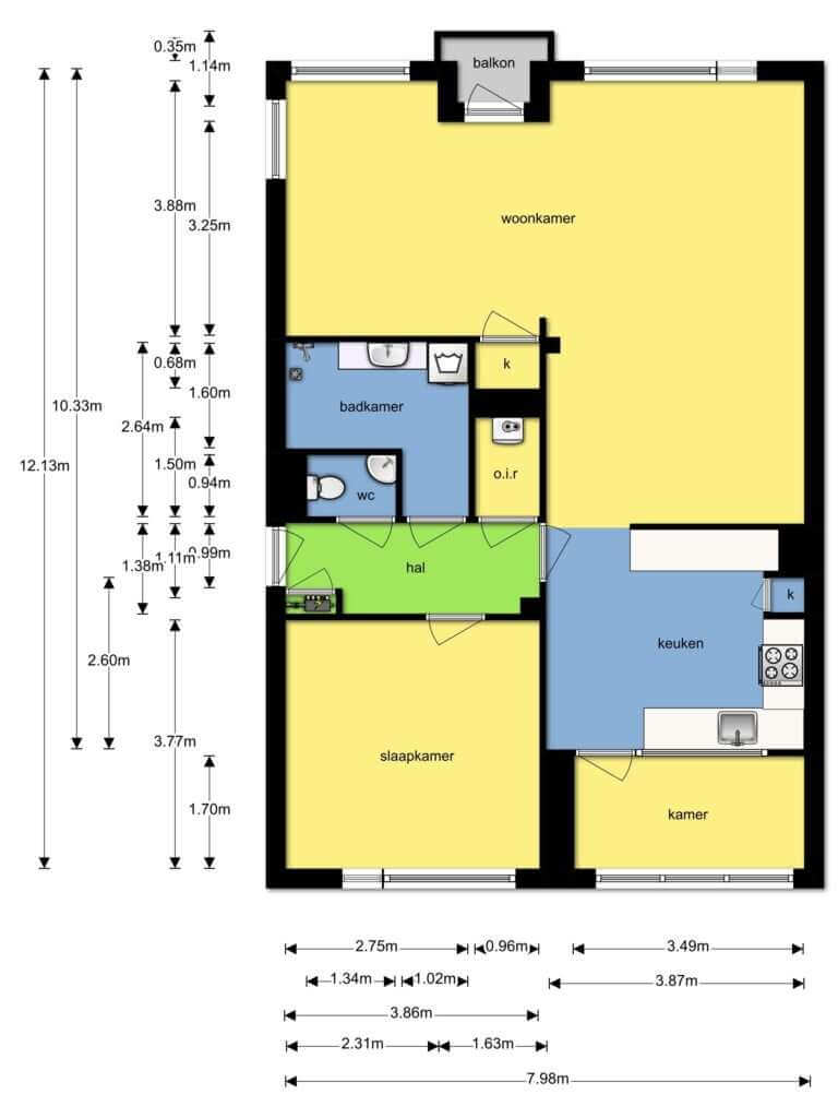
Layout;
Ground floor
Closed entrance with the mailboxes and access to the elevator and stairs. Access to the storage room in the basement.
Second floor
Entrance, hall with access to meter cupboard, bathroom with toilet and fountain, spacious bedroom with closet, neat bathroom with walk-in shower, sink and mirror, including the washer and dryer, storage room with central heating boiler and living room.
Large L-shaped living room with half open kitchen which is equipped with various appliances such as a ceramic cooker, extractor hood, dishwasher and fridge with freezer.
Adjacent to the kitchen a loggia on the south with above that an electrically operated awning.
The entire house has a beautiful wooden floor.
Specifics;
– The property is unfurnished
– For rent for a period of at least 12 months
– The rent is excluding GWE, internet and TV
– The rent includes the service costs of the Home Owners Association
Are you interested in this property? Please contact our office in Utrecht via [email protected].



































