Description
This furnished terrace house is located in the residential area of Schilderskwartier in Woerden and is part of a complex with flats, townhouses and terrace houses. Ready for the future, the house has three bedrooms and a study annex TV-room and is heated without gas, with underfloor heating on every floor. Thanks to the many solar panels on the roof in combination with the heat pump, this is a so-called zero-energy home, which means your energy costs will be very low!
The layout is as follows:
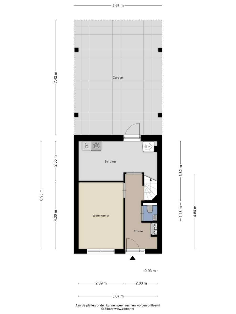
Upon arrival, you can park your car in your own carport and connect it to your own charging station if desired. From here, you can enter either through the back door via the carport or through the front door at the front.
When you enter through the front door, you will find yourself in the hall. On your left, you will see the spacious, bright study/TV room, equipped with a desk and sofa with TV. On your right is a separate toilet, equipped with a modern wall-mounted toilet and tap. If you continue straight ahead, you will arrive at the laundry room, which can also be used as a storage room. In addition to plenty of storage space for bicycles, for example, there is also a washing machine, tumble dryer and an extra freezer. Here you will also find the door that leads back to the carport.
A little further back, next to the toilet, is the staircase that takes you to the first floor. On the first floor is the living room and open kitchen. In line with current trends, this is an open-plan living space. The luxurious kitchen with breakfast bar is sleekly built-in and equipped with a 5-burner induction hob with extractor hood, combination oven, dishwasher, Quoocker tap and refrigerator. The bar creates a visual separation in the open space and is perfect for entertaining guests.
A particularly nice feature is that the sliding doors in the kitchen open onto a spacious sun terrace. When the sun is shining, you can easily move outside with your guests, while when it rains, you can still enjoy the fresh air while having a drink at the bar inside. It is a kind of British translation of Californian “indoor outdoor living”, where the outdoor space is made to feel like an extension of the indoor spaces.
If you go up another floor via the stairs, you will arrive at the second and top floor. Here you will find the bathroom and three bedrooms. The bathroom has a shower, toilet and washbasin with floating mirror.
The property is located in a quiet street near a primary school, supermarket, railway station, the centre of Woerden and you can quickly reach the motorway to all major cities. Be quick, this could be your dream home!
The details at a glance:
– Available to rent for a period of 12 months
– Rent excludes costs for gas, water, electricity, TV, internet and council tax
– Very energy-efficient property
– Comes fully furnished
– With private carport for 2 cars, including a charging point
Are you interested in this property? Please contact our office in Utrecht via [email protected]























































































