Description
Fully furnished 3 room apartment / penthouse with roof terrace facing south, right in the center of Utrecht.
Situated in the heart of Utrecht’s with all the amenities you can imagine within walking distance, such as the Central Station and various shops and the cozy entertainment and dining areas.
The penthouse has recently been completely renovated. The bathroom and kitchen are renewed and the apartment features a beautiful new light wooden floor. Due to the large glass windows, the house is also very light.
Layout;
Ground floor:
Joint entrance with stairwell and mailboxes.
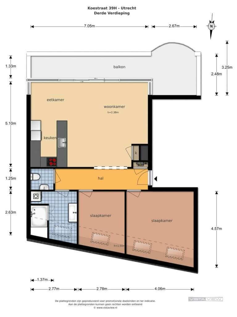
Third floor:
Entrance hall with access to the meter cupboard, the spacious living room, the master bedroom and the second bedroom, bathroom and separate toilet. Through the living room with sliding doors access to the roof terrace to the south and access to the new, modern open kitchen with counter top of natural stone and a cooking island, which includes various appliances such as a dishwasher, combi microwave, induction cooker, fridge freezer and extractor hood. The new, well-finished bathroom has a double sink, spacious shower and washing machine.
Specialties;
– The house is fully furnished
– Available for a minimum of 12 months
– For rent excluding GWE, TV and internet
– Parking on the street with a license
Are you interested in this property? Plese contact our office in Utrecht through [email protected].












































