Beschrijving
Gestoffeerd 2 kamer appartement, gelegen op de tweede etage, met berging en grote garage in de onderbouw in het centrum van Zeist.
Het appartement is zeer goed onderhouden en is voorzien van een nieuwe keuken en een nette badkamer en toilet. Tevens zijn alle plafonds en wanden geschilderd.
Op loopafstand van diverse voorzieningen diverse winkels, restaurants, bibliotheek en theater/bioscoop. Gunstige ligging t.o.v. diverse uitvalswegen richting o.a. de A12 en de A28, busstation Zeist en station Driebergen-Rijsenburg.
Achter het appartementengebouw, via de slagboom, zijn parkeerplaatsen aanwezig voor eigenaren of bezoekers van de appartementen. Daarnaast heeft dit appartement in de onderbouw een eigen berging en een grote garage die zowel binnendoor als via een overheaddeur bereikbaar is.
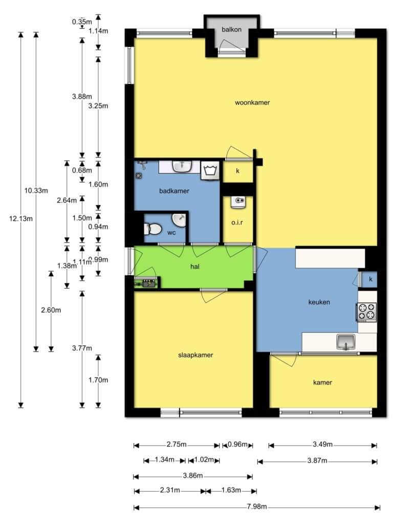
Indeling;
Begane grond
Afgesloten entree met de postbussen en toegang tot de lift en de trap. Toegang naar de berging in de onderbouw.
Tweede etage
Entree, hal met toegang tot meterkast, toiletruimte met toilet en fontein, royale slaapkamer met kastenwand, nette badkamer met inloopdouche, vaste wastafel en spiegel, waaronder de wasmachine en droger, berging met cv-ketel en de woonkamer.
Grote L-vormige woonkamer met half open keuken welke voorzien is van diverse inbouwapparatuur zoals een keramische kookplaat, afzuigkap, vaatwasser en een koelkast met vriezer.
Aangrenzend aan de keuken een loggia op het zuiden met daarboven een elektrisch bedienbaar zonnescherm.
De gehele woning is voorzien van een mooie houten vloer.
Bijzonderheden;
– De woning wordt ongemeubileerd opgeleverd
– Te huur voor een periode van minimaal 12 maanden
– De huurprijs is exclusief GWE, internet en TV
– De huurprijs in inclusief servicekosten VVE
Heeft u belangstelling voor deze woning? Neem contact op met ons kantoor in Utrecht via [email protected].



































