Beschrijving
Wonen in een prachtig dorp grenzend aan Amsterdam, tussen groen en water, met veel ruimte en twee ruime balkons met wijds uitzicht over het Abcoudermeer.
Abcoude heeft tientallen rijksmonumenten en biedt een gezellige levendige dorpskern met 2 supermarkten, diverse verswinkels, markt, cafés en restaurants.
De 27 holes golfbaan ‘De Hoge Dijk’ ligt op 3 minuten afstand.
Abcoude is perfect bereikbaar met de auto, trein en bus.
Met de auto is het slechts 10 minuten rijden naar de Zuid-as van Amsterdam en 15 minuten naar Luchthaven Schiphol.
Diverse Internationale scholen zijn bereikbaar binnen 12 minuten autorijden.
Daarnaast ligt Amsterdam om de hoek en is gemakkelijk per fiets bereikbaar.
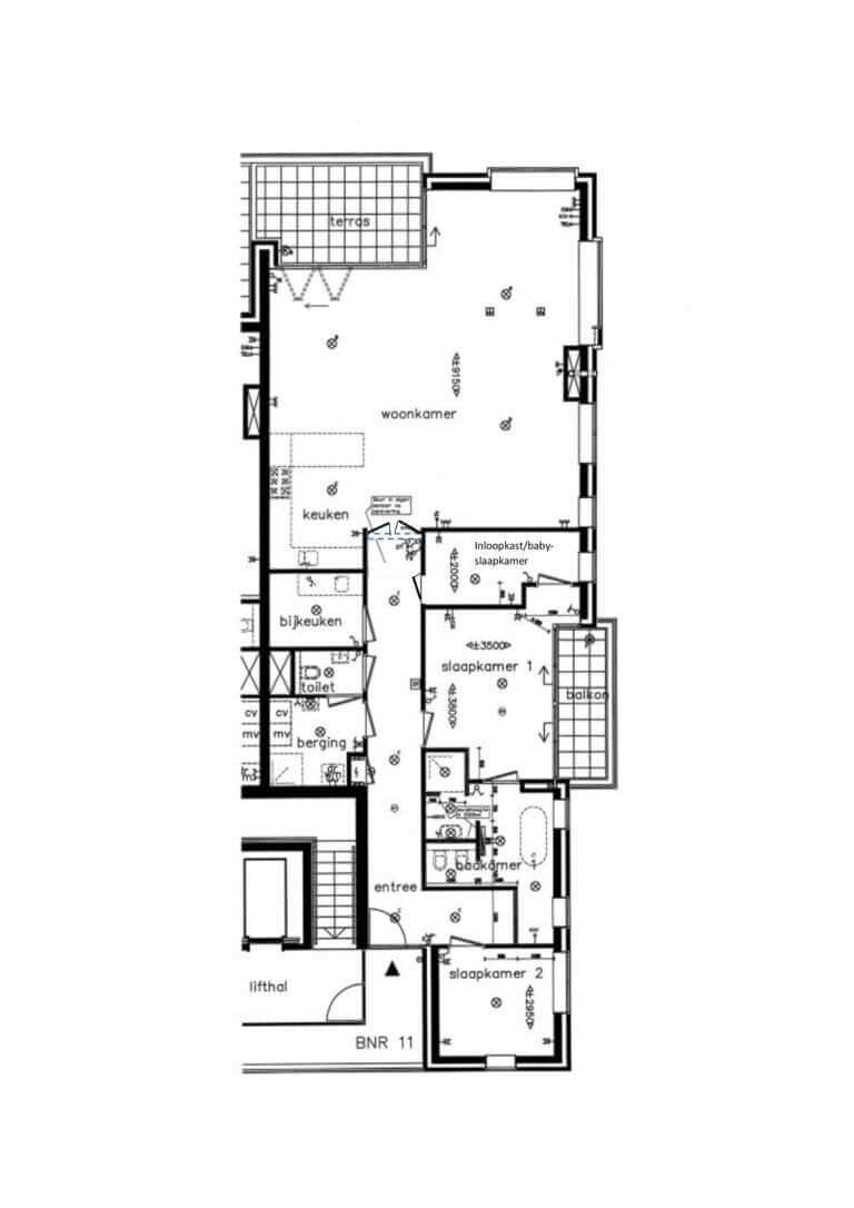
De ruime nieuw gebouwde woning beschikt over 3 slaapkamers, 2 badkamers en 2 balkons met prachtig uitzicht. Nieuwe hoogwaardige kwaliteit inrichting en meubilering en een inpandige parkeergarage met plaats voor 2 auto`s en een lift staan tot uw beschikking.
De woning maakt onderdeel uit van een kleinschalig appartementen complex (6 appartementen).
De huurprijs is exclusief de kosten van gebruik gas, water, elektriciteit, internet en gemeentelijke bewonersheffingen.














































































