Beschrijving
Volledig met hoge kwaliteit gerenoveerd 3 slaapkamer appartement met tuin, gelegen in het populaire Amsterdam-West.
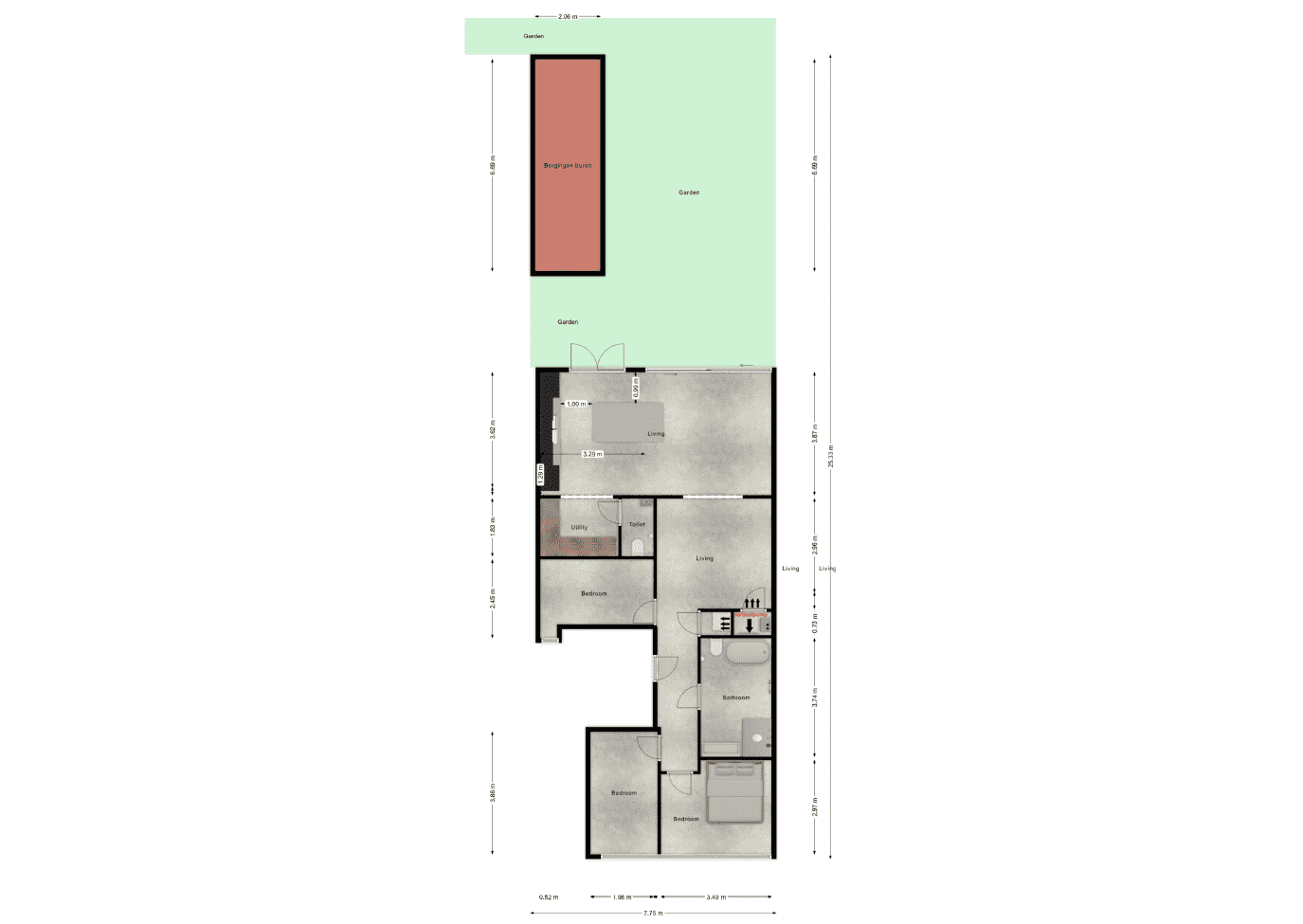
Indeling
Via de hal bereik je de ruim opgezette living, bestaande uit een woon en eetruimte met open keuken. De keuken met kookeiland en gezellig bargedeelte is van alle gemakken voorzien, plus dubbele koelkast en vriezer. Naast de open keuken bevindt zich ook nog een ruime pantry plus separate toiletruimte.
Middels openslaande deuren in de living bereikt u de fijne tuin met eigen achterom en afsluitbare poort.
Via de hal bereikt u ook de andere vertrekken, zoals de master bedroom, de luxe badkamer met ligbad, ruime inloopdouche, toilet en wastafelmeubel, de tweede slaapkamer en derde slaapkamer, die tevens ook zeer geschikt is als kantoorruimte.
Omgeving
Het appartement aan de Admiraal de Ruijterweg ligt op korte afstand van het leuke Erasmuspark, Westerpark en de Jordaan. Het centrum van Amsterdam bereik je in nog geen 10 minuten fietsen. In de nabijheid zijn vele gezellige restaurants en barretjes te vinden.
Verder zijn er goede openbaar vervoer verbindingen (tram 19, bus 18, 21, 80, station Sloterdijk. Met de auto ben je binnen vijf minuten op de ringweg A10 en binnen 20 minuten ben je met het openbaar vervoer op Schiphol.
De huurprijs is exclusief kosten voor GWE en internet.
Model c contract van toepassing.











































































