Beschrijving
Op een absolute toplocatie in Amsterdam-Zuid!
Prachtig luxe 3 slaapkamer woning met badkamer met bad en inloopdouche, balkon én dakterras!
Deze luxe woning is van alle gemakken voorzien!
De woning is gelegen in het chique Amsterdam Oud-Zuid in de rustige Agamemnonstraat en bestaat uit 3 woonlagen.
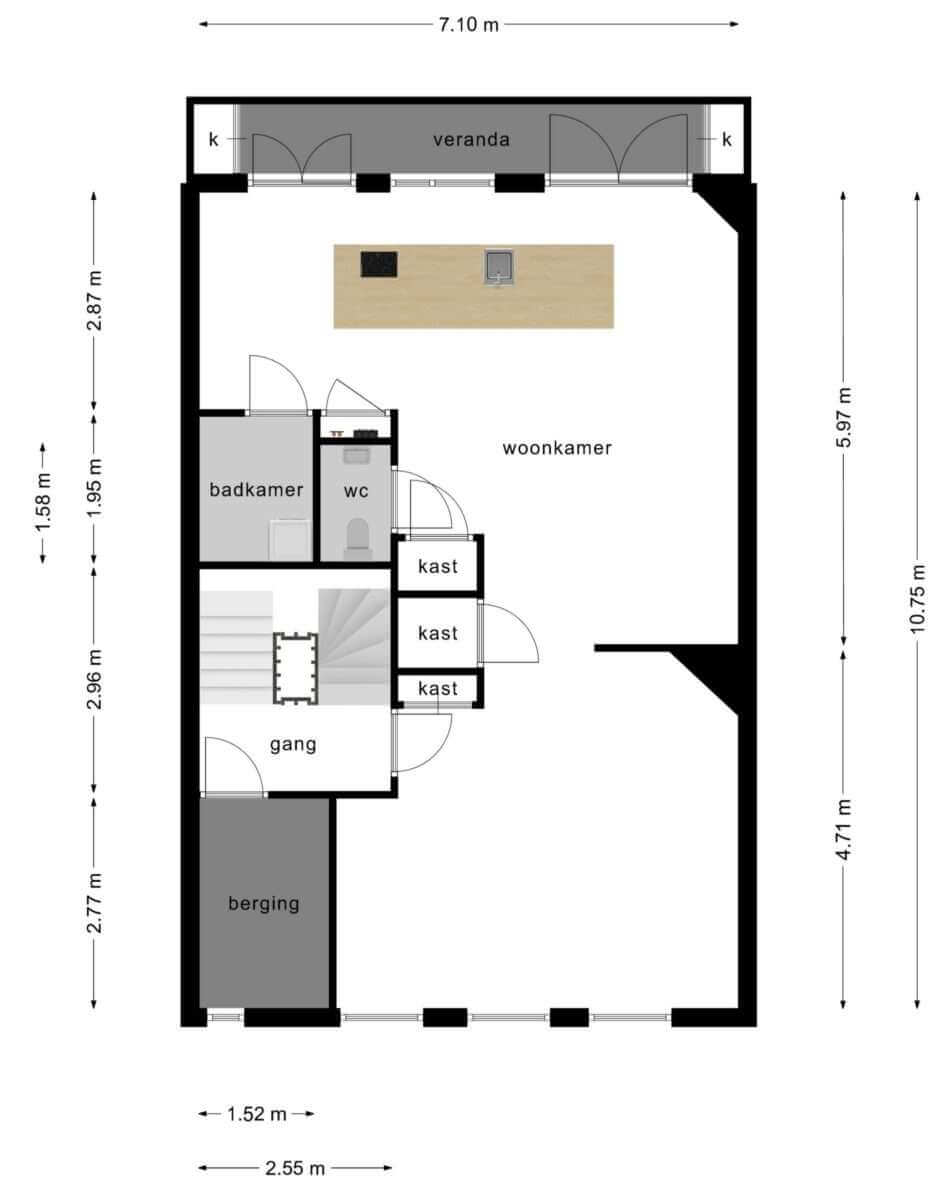
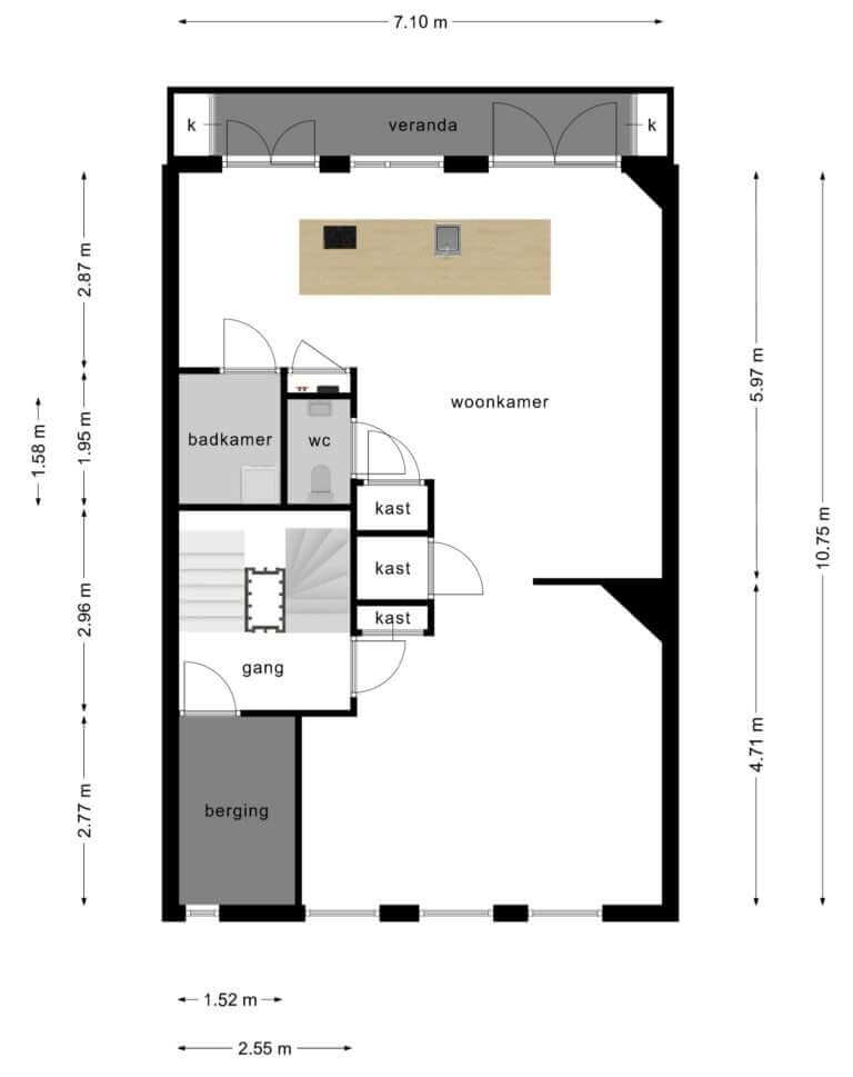
Via de entree op de 1e verdieping bereikt u via een trap de tweede verdieping met een ruime en lichte woonkamer aan de voorzijde en een grote leefkeuken met balkon aan de achterzijde. Op deze verdieping bevindt zich ook een extra studeerkamertje, toilet en een washok.
De keuken kenmerkt zich door een groot kook- en spoeleiland. Heerlijk koken terwijl je gezin of gasten zowat naast je zitten aan de bar en eettafel als verlengstuk van het kookeiland. Hoe gezellig is dat!
Verder is de keuken voorzien van allerlei moderne inbouwapparatuur. Denk aan een conventionele oven, combi magnetron, grote koel-vriescombinatie en vaatwasser.
Tevens geeft deze ruimte toegang tot het balkon, dat op het oosten ligt, waardoor u in de ochtend heerlijk kunt genieten van de ochtendzon met een kop koffie in de hand.
Ook niet onhandig; vanuit de leefkeuken loopt u zo het ruime washok in.
Op de derde verdieping bevinden zich twee slaapkamers, inloop kledingkast, apart toilet en ruime badkamer met ligbad, dubbele wastafel en inloopdouche. Via deze verdieping komt u ook uit op het ruime dakterras met prachtig uitzicht over de binnentuinen.
Op de bovenste vierde verdieping bevindt zich de lichte derde slaapkamer.
Ligging:
Dit bijzondere pand ligt in een vriendelijk straatje tussen de groene Van Tuyll van Serooskerkenweg en de Stadionkade nabij het Stadionplein in de Stadionbuurt van Amsterdam Zuid.
Het Stadionplein is geheel opnieuw ontwikkeld met o.a. een schitterend hotel, een modern restaurant “Square”, luxe appartementen, een gezellige zaterdag markt, een supermarkt (grote Albert Heijn), een ondergrondse parkeergarage en een parkachtige omgeving met fontein en veel groen.
Qua horeca en koffie is het goed toeven in dit deel van Zuid met plekken als BAUT Zuid, Vascobelo, De Drie Graafjes, Bar Alt, Jack Dish, Stach, Het Vlaamsch Broodhuys, Cucina Casalinga, MaMa Kelly en Wils.
Ook is de Vrije Universiteit vlakbij, evenals diverse (internationale) andere scholen.
De zakelijke Zuidas en natuurlijk het Amsterdamse Bos (vele recreatiemogelijkheden zoals het Amstelpark met tennis, squash, fitness en health/saunacenter) met het Nieuwe Meer liggen om de hoek.
De locatie is uitstekend bereikbaar met de auto via de ring A-10 afslag Zuid en afslag Rai (S108 en S109) en met het openbaar vervoer (station Zuid/WTC) en tramlijn 16 en 24. Met een ritje van circa 5 minuten op de fiets bevindt u zich in het vondelpark of op het Leidseplein.
Er is mogelijkheid voor een parkeervergunning.
De huur is exclusief kosten van gebruik gas, water, elektriciteit en gemeentelijke bewoners heffingen.
































































































