Beschrijving
3 kamer (2 slaapkamer) appartement met balkons aan voor en achterzijde (oosten en westen). .
Het ruime balkon/terras is vanaf het voorjaar tot de herfst echt een verlengstuk van de woonkamer en maken dit fijne appartement compleet.
Het appartement is gunstig gelegen in het steeds populairder wordende Bos & Lommer met hotspots zoals Het Wilde Westen, De Biergrill en theater Podium Mozaïek.
Voor je dagelijkse boodschappen ga je naar Het Bos & Lommerplein wat op een paar minuten van het appartement is gelegen.
De buurt kenmerkt zich door veel groen, onder ander het Erasmuspark en de Sloterplas bevinden zich op een steenworp afstand van het appartement.
Goede parkeermogelijkheden en een zeer goede bereikbaarheid met zowel de auto (ring A10) als met openbaar vervoer.
Parkeren met vergunning, geen wachtlijst.
Het centrum van Amsterdam is goed met de fiets te bereiken.
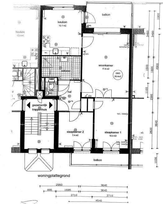
Indeling:
Begane grond: Afgesloten entree met toegang tot de berging met elektra en de gemeenschappelijke tuin. Middels het verzorgde trappenhuis bereik je het appartement op de 2e verdieping.
2e verdieping: Hal separaat toilet inclusief fontein, ruime badkamer voorzien van inloopdouche met thermostaatkranen, wastafel met spiegelkast, designradiator en was- en droogmachine.
Aan de voorzijde liggen de twee slaapkamers met openslaande deuren (kiep/kantelstand) naar het balkon aan de voorzijde (westen).
Aan de achterzijde tref je lichte woonkamer met schuifpui naar het extra grote balkon aan de binnentuinzijde (oosten); dit balkon is tevens vanuit de ruime woonkeuken met diverse inbouwapparatuur toegankelijk.
Vanaf het balkon heb je leuk zicht op de fraai aangelegde en goed onderhouden gemeenschappelijke tuin met kapel en op de Kolenkitkerk.
De huurprijs is exclusief kosten van gebruik g/w/e/internet en gemeentelijke bewoners heffingen.














































