Beschrijving
English translation below:
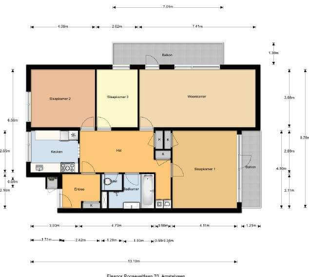
Gerenoveerd zeer ruim en zonnig 4 kamer hoek appartement (met 3 slaapkamers) van ca. 120 m².
De woning is gelegen op de 6e verdieping, met een prachtig en vrij uitzicht en beschikt over twee royale zonnige balkons.
De woning is in zijn geheel voorzien van nieuwe meubilering, nieuwe bedden, nieuwe kasten, nieuwe wasmachine en wasdroger en nieuw schilderwerk.
Het Stadshart van Amstelveen, de “Zuid As” en winkelcentrum Groot Gelderlandplein en de uitvalswegen A9 en A10 zijn binnen 5 minuten bereikbaar.
Het complex grenst aan het overdekte winkelcentrum “Kostverlorenhof”, met onder andere een apotheek, postkantoor, stomerij, twee supermarkten, bakker. slager, diverse restaurants, speciaal zaken en nabij het natuurgebied de Middenpolder voor alle recreatie behoeftes.
Diverse scholen op loopafstand, diverse Internationale scholen op 10 minuten fietsafstand.
Openbaar vervoer, halte Zonnestein, (tram 5, sneltram/metro 51 en buslijn 165) zijn op korte loopafstand gelegen.
Het appartementencomplex, gelegen in de groene wijk “Kostverloren” in Amstelveen Noord, beschikt over twee afgesloten entrees en twee liften.
Bijzonderheden:
– Centraal gelegen;
– Gerenoveerd;
– Ruime eigen berging in de onderbouw op de eerste verdieping van circa 10 m²;
– Gezamenlijke fietsenberging op de begane grond en op de eerste verdieping;
– Parkeren is mogelijk middels een vergunningstelsel (circa € 40 per jaar) zonder wachttijden:
– Gratis parkeren op circa 100 meter afstand;
– Goed geïsoleerd en dubbele beglazing;
De huurprijs is exclusief gebruik gas, water, elektriciteit, verwarming en gemeentelijke bewonersheffingen.
English translation:
Renovated very spacious and sunny 4 room corner apartment (with 3 bedrooms) of approx. 120 m².
The property is located on the 6th floor, with a beautiful and unobstructed view and has two large sunny balconies.
The house is fully equipped with new furniture, new beds, new cabinets, new washing machine and dryer and new paintwork.
The Stadshart of Amstelveen, the “Zuid As” and shopping Groot Gelderlandplein and the roads A9 and A10 are within 5 minutes.
The complex is adjacent to the shopping center “Kostverlorenhof”, including a pharmacy, post office, dry cleaning, two supermarkets, bakery. butcher, various restaurants, special business and near the Middenpolder nature reserve for all recreational needs.
Several schools within walking distance, several international schools within 10 minutes cycling distance.
Public transport, stop Zonnestein, (tram 5, express tram / metro 51 and bus 165) are a short walk away.
The apartment complex, located in the green district “Kostverloren” in Amstelveen Noord, has two closed entrances and two elevators.
Particularities:
– Centrally situated;
– Renovated;
– Spacious private storage in the basement on the first floor of approximately 10 m²;
– Shared bicycle storage on the ground floor and on the first floor;
– Parking is possible through a permit system (approximately € 40 per year) without waiting times:
– Free parking approximately 100 meters away;
– Well insulated and double glazing;
The rent is exclusive use of gas, water, electricity, heating and local residents’ taxes.
































































