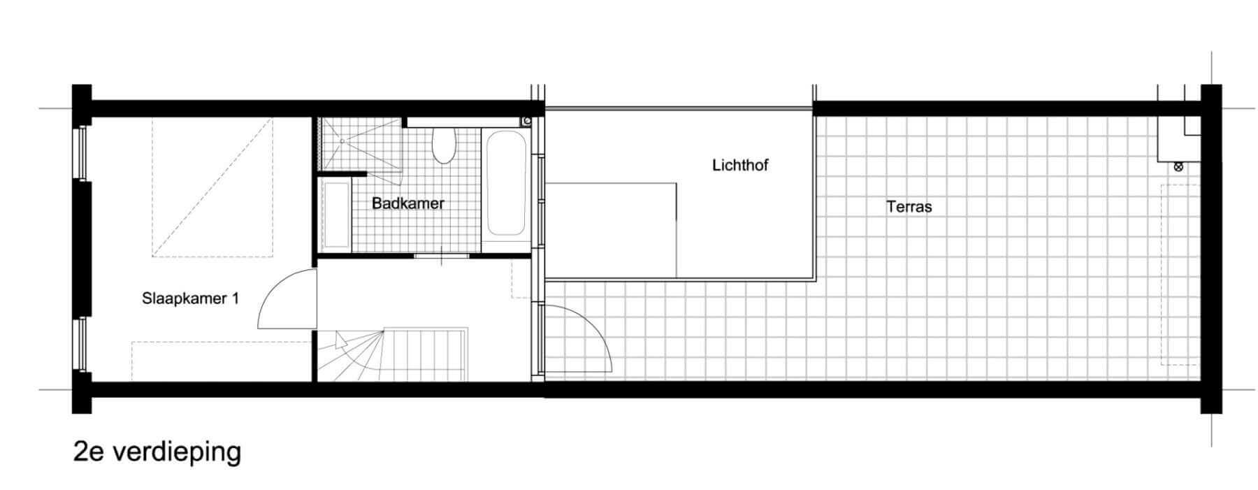
Beschrijving
Geheel gerenoveerd ruim woonhuis aan het water in Amsterdam.
3 slaapkamers, 2 badkamers, dakterras op het zuiden, patio, inpandige garage en schitterend uitzicht.
Dit bijzondere huis bevindt zich in het gewild Oostelijk Havengebied, aan het water op het schiereiland Sporenburg.
Het voormalig haveneiland Sporenburg is een heerlijke buurt om te wonen. De eilanders waarderen de stadse, gemoedelijke sfeer en de vrijheid. Er is een zwemsteiger voor de deur en zijn er diverse andere zwemsteigers op het eiland.
In de nabije omgeving zijn er diverse leuke restaurants en winkels.
Met de fiets bent u binnen en kwartier op het Centraal Station. Bus- en tramhalte zijn op loopafstand evenals scholen en het winkelcentrum Brazilië voor de dagelijkse boodschappen.
Met de auto bent u binnen 5 minuten op de A10 (s114), kortom zeer goede bereikbaarheid en om de hoek van het centrum!
Deze woning biedt de unieke mogelijkheid om ruim te wonen dichtbij de stad èn te genieten van vrijheid en water!
Huurprijs is exclusief de kosten van gebruik G/W/E/Internet/TV en gemeentelijke heffingen.
Voor meer informatie kijk op www.ehr.nl, mail naar [email protected] of bel 020 208 21 07


















































