Beschrijving
LET OP: woning is te huur tot en met 31 december 2023! Uitcheck datum uiterlijk 2 januari 2024!
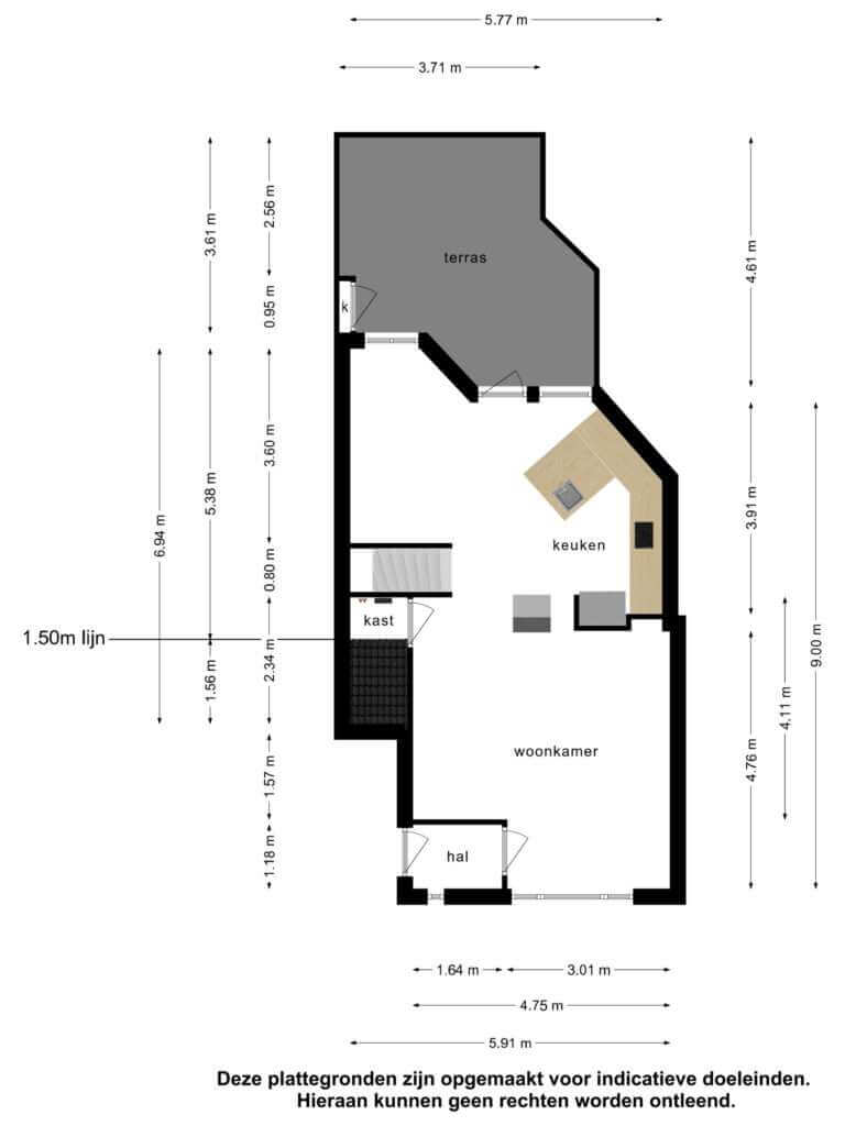
Sfeervolle en gemeubileerde jaren ’30 woning verdeeld over de bel-etage en het souterrain.
Royale woonverdieping voorzien van een ruime moderne keuken evenals drie goede slaapkamers in het souterrain en terras aan de achterzijde.
Op de begane grond bevinden zich de ingang van de woning, hal, ruime woonkamer met gezellige gas-open-haard en de woonkeuken.
De keuken is voorzien van vaatwasser, gastoestel (5-pitten) met oven en grote koelkast/vriezer.
De bankirai hard houten patio ligt aansluitend aan de keuken en hier bevindt zich ook een opbergkast.
In het souterrain bevinden zich de master slaapkamer met een ruime inloopkast en twee (kinder) slaapkamers en het toilet.
Verder is er een badkamer met ligbad, inloopdouche, dubbele wastafel en een aparte ruimte voor de wasmachine, droger en opslag.
OMGEVING
De charmante woning aan de Groenendaalstraat ligt in de groene en gewilde Hoofddorppleinbuurt in Amsterdam Zuid.
Een veilige, kindvriendelijke buurt te midden van twee stadsparken, het Vondelpark en het Rembrandtpark.
Aan het Hoofddorpplein zijn vele lokale winkels te vinden, zoals een kaasboer, notenwinkel, wijnhandel, groenteboer, slager, bakker en banketbakker.
Ook voor de dagelijkse boodschappen hoef je niet ver te lopen. Een grote supermarkt, een Hema, Etos en
een Marqt liggen aan de Sloterkade om de hoek.
In de directe omgeving zijn veel leuke en gezellige cafés en restaurants te vinden.
Het Amsterdamse Bos ligt op slechts een kwartiertje fietsen vanaf deze locatie.
In de buurt zijn diverse kinderdagverblijven en basisscholen gevestigd en ook het nieuwe gebouw van The British School of Amsterdam ligt dichtbij.
BEREIKBAARHEID
De woning is zowel met de auto als het openbaar vervoer uitstekend te bereiken.
Er is een rechtstreekse tramverbinding met lijn 2 naar het centrum en het Centraal Station en buslijn 15 brengt je in no time naar Station Zuid en vandaar in 6 minuten
naar Schiphol Airport.
Ook de haltes voor tram 1 en 17 en bus 15, 62 en 358 liggen op loopafstand.
Met de auto ben je in een paar minuten op de ringweg A10 en in 15 minuten op Schiphol Airport.
De auto kan worden geparkeerd op straat, betaald of met vergunning.
De huurprijs is exclusief de gebruikskosten van, gas, water, elektriciteit, internet en gemeentelijke bewoners belasting.
















































