Beschrijving
BIEDEN VANAF PRIJS € 440.000,00 K.K. Wat een fantastische, veilige familiewoning in de Havenstraat in Berkel en Rodenrijs is dit!
Het object betreft een zeer goed onderhouden woning met voortuin, ruim dakterras op het zonnige zuiden, 3 slaapkamers en carport voor 2 auto’s op afgesloten terrein. De eengezinswoning ligt in de kindvriendelijke, groene en ruim opgezette wijk “Meerpolder” met voorzieningen als scholen, sportverenigingen, meerdere speeltuintjes, metrostation Westpolder en winkelcentra op loop- en fietsafstand.
Wonen en koken
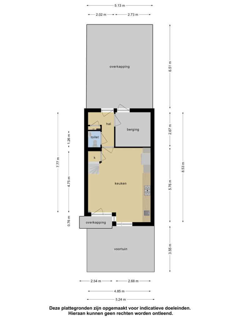
Bij binnenkomst van de woning komt u direct in de zeer ruime gezellige woonkeuken met voorzieningen als een vaatwasser, Amerikaanse koelvries-combinatie, grote oven, 6-pits gaskookplaat, afzuigkap.
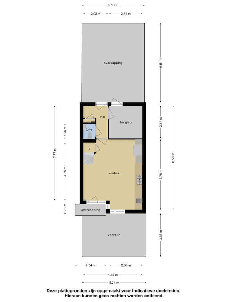
Aan de achterzijde van de woning vindt u de gang met toegang tot de handige wasruimte/ provisieruimte voorzien van wasmachine- en drogeropstelling, een (gasten)toilet met fonteintje, de meterkast en toegang tot de achterzijde met een eigen overdekte parkeerplaats op het afgesloten binnenterrein. Deze parkeerplaats biedt plaats voor 2 auto’s. Voor het binnenterrein is een actieve VvE opgericht met een maandelijkse bijdrage van € 95,-. Zij houden jaarlijks overleg, hebben een MJOP en een reservefonds.
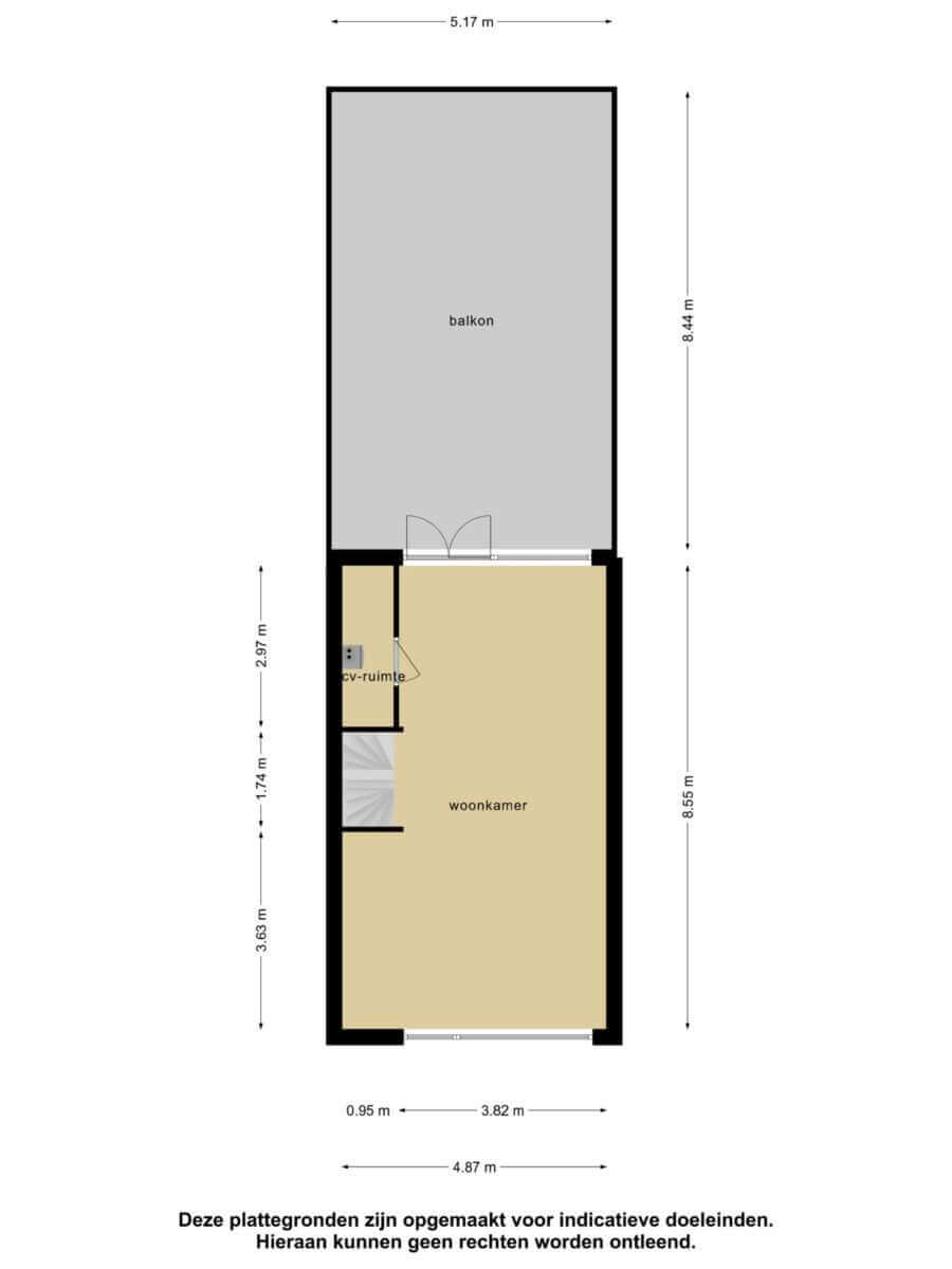
Vanuit de keuken bereikt u via een open trap de woonkamer op de 1e verdieping. De woonkamer is voorzien van een fraaie, recent gerenoveerde whitewash eiken parketvloer. Door de vele raampartijen is het een heerlijke lichte woonkamer met openslaande deuren naar het zeer ruime dakterras (ca. 42m²) aan de achterzijde met een elektrisch bedienbaar zonnescherm over de gehele breedte.
Slapen en douchen
Op de bovenste verdieping zijn 3 slaapkamers en een fijne badkamer met douchecabine, wastafelmeubel en het 2e toilet. Afmetingen slaapkamers aan de voorzijde zijn ca. 2.64m x 4.61m en ca. 3.52m x 2.11m. De slaapkamer aan de achterzijde is ca. 2.64m x 3.80m. Ok deze verdieping is voorzien van prachtige recent gerenoveerde whitewash eiken parketvloeren.
Bijzonderheden:
Woonoppervlakte ca. 119m²
Bouwjaar 2003
Carport voor 2 auto’s op afgesloten terrein
Schilderwerk muren 2021
Eigen grond
Energielabel A
Volledig geïsoleerd
Vve bijdrage voor afgesloten binnenterrein € 95,- per maand
CV ketel uit 2018
Dit huis heeft een speelse lay-out. Is zowel comfortabel als functioneel en is gelegen in een ruim opgezette wijk met veel groen , speeltuinen en de mooie waterplas “Berkelse Plas”. De waterplas functioneert als verbinding tussen de omliggende woongebieden; de plas koppelt het centrum van Berkel en Rodenrijs aan het westelijk gelegen natuurgebied de Groenblauwe Slinger, met prachtige wandel- en fietspaden.
Het centrum van Berkel en Rodenrijs met een keur aan gezellige winkels en supermarkten bevindt zich op loopafstand van de woning.
Wie rust wil hoeft alleen maar de deuren naar het ruim opgezette dakterras op de eerste verdieping van de woning te openen of ‘s winter heerlijk te cocoonen in de gezellige woonkeuken.
INTERESSE?
U BENT VAN HARTE WELKOM OM OP ZATERDAG 25 SEPTEMBER 2021 TUSSEN 11:00 EN 16:00 UUR EN WOENSDAGAVOND 29 SEPTEMBER TUSSEN 19:00 UUR EN 21:00 UUR TIJDENS DE INLOOPMOMENTEN OM DE WONING TE BEZICHTIGEN.
Uiteraard kunt u tevens een afspraak maken om de woning individueel te bezichtigen. U kunt ons per e-mail bereiken op [email protected] of reageren op dit object via Funda Contact met de makelaar.
BIEDINGSTERMIJN TOT UITERLIJK 1 OKTOBER 2021, 12:00 UUR
Uw bod en eventuele voorbehouden kunt u uitbrengen per e-mail. Indien u over wilt gaan tot aankoop van de woning dient u aan EHR Rotterdam aan te tonen dat de koopsom van de woning voor u financieel haalbaar is. Dit kan aangetoond worden door bijvoorbeeld afgifte van een uitgebracht advies door een daartoe deskundige en erkende financiële instelling of adviseur.
TELEFONISCH BIEDEN IS NIET MOGELIJK!
Deze informatie is met de nodige zorgvuldigheid samengesteld. Onzerzijds wordt echter geen enkele aansprakelijkheid aanvaard voor enige onvolledigheid, onjuistheid of anderszins, dan wel de gevolgen daarvan. De meetinstructie is opgesteld aan de hand van de meest recente meetinstructie gebruiksoppervlakte woningen en bruto inhoud woningen, gebaseerd op de NEN 2580. De meetinstructie sluit verschillen in meetuitkomsten niet volledig uit, door bijvoorbeeld interpretatieverschillen, afrondingen of beperkingen bij het uitvoeren van de meting.









































































































