Beschrijving
Gelegen in Zutphen in de Hawkinsstraat ligt deze karakteristieke en ruime 5 slaapkamer woning met fijne tuin.
Een zeer complete energiezuinige (energielabel A) eengezinswoning gelegen op een prettige en kindvriendelijke locatie!
Op korte afstand van de woning zijn alle denkbare voorzieningen aanwezig. 2 winkelcentra met uitgebreid winkelaanbod, scholen, sportverenigingen, de binnenstad van Zutphen, NS-station en het prachtige buitengebied. Tevens kan men via goede uitvalswegen gemakkelijk de autosnelweg bereiken.
Indeling
Op de begane grond vind je de open keuken (van alle gemakken voorzien), met aangrenzend de dining. Hierachter bevindt zich de woonkamer, met toegang (schuifpui) naar de heerlijke tuin op het zuiden.
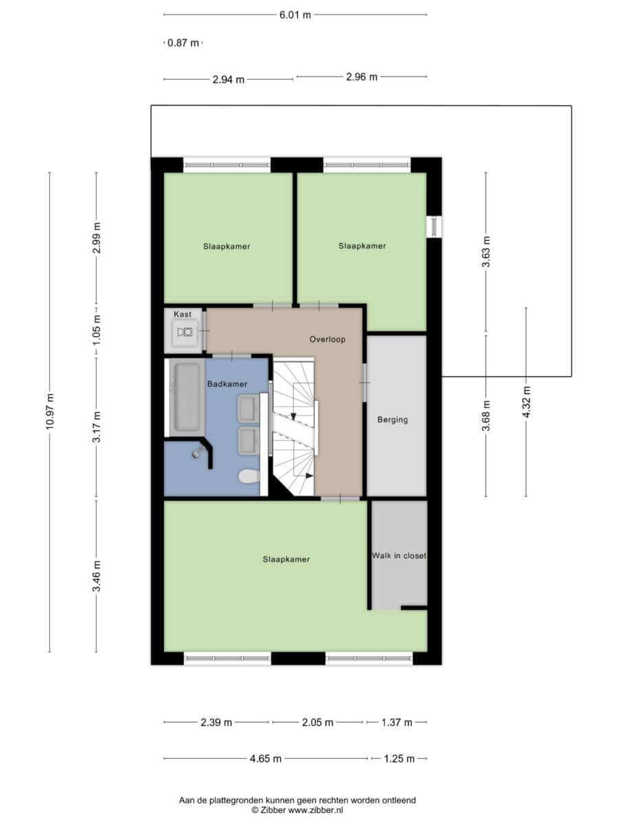
Op de eerste verdieping bevinden zich 3 royale slaapkamers, plus luxe badkamer met ligbad, inloopdouche, toilet en dubbele wastafels.
Op de tweede verdieping (zolder) bevinden zich nog twee lichte en ruime slaapkamers, die tevens zeer geschikt zijn als kantoor/hobby ruimte. De vijfde slaapkamer op zolder en enkel bereikbaar via de vierde slaapkamer (ook op zolder).
De huurprijs is exclusief kosten voor GWE, internet en gemeentelijke heffingen.
Model C huurovereenkomst.




















































































