Beschrijving
De volledige renovatie van het monumentale pand uit 1755, is voltooid. U kunt de eerste bewoner van dit prachtige Souterrain appartement zijn.
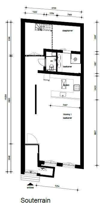
De woning beschikt over 1,5 slaapkamer.
Op het hoogste kwaliteitsniveau afgewerkt appartement in het soutterain gelegen van 85m2, met 2 slaapkamers (waarvan 1 met inbouwkasten), nieuwe keuken (met inbouwapparatuur), nieuwe badkamer (met inloopdouche) en per ruimte instelbare vloerverwarming.
Het appartement is voorzien van led-verlichting, dimbare wandlampen en kroonluchters. Nieuwe geluidsisolerende vloeren en wanden. Beschikt over monumentendubbelglas, vloerverwarming, inbouwkasten, wasmachine/droger en nieuwe keuken met alle keukenapparatuur.
Alle raampartijen zijn gerenoveerd en daardoor vederlicht te openen tot op de gewenste hoogte.
De kenmerkende traditionele elementen zijn tijdens de renovatie behouden, zoals de marmeren vloeren in de hal, originele balkenplafonds, ornamenten en kroonluchters.
Er zal voor de huurder een huismeester beschikbaar zijn die tevens de gangen, traphuis, bordes en ramen aan de buitenzijde schoon zal houden, de servicekosten hiervoor bedragen € 35,00 per maand. De huismeester kan ook op verzoek en tegen betaling uw appartement schoonhouden.
Omgeving:
Het appartement bevind zich op 500 meter van De Dam, 250 meter van de Munt en het Rembrandsplein en 125 meter van de Nieuwmarkt. Op de Nieuwmarkt is iedere zaterdag en woensdag een biologische versmarkt.
Naast het gebouw bevindt zich STACH, een winkeltje waar elke ochtend vers brood, koffie, sapjes en andere delicatessen staan.
Vanuit de Kloveniersburgwal zijn alle stedelijke voorzieningen op loopafstand aanwezig: Theater Tuschinski & Carre, Muntplein, de Dam, Bloemenmarkt, Waterlooplein, Nieuwmarkt, Rembrandtplein, de Utrechtsestraat , de Hermitage en talloze cafés en restaurants.
Zelfs het Centraal Station is op loopafstand. Onder het Stadhuis – Stopera- Muziektheater bevindt zich een grote parkeergarage evenals op het Oosterdokseiland onder het Conservatorium.
De Kloveniersburgwal werd in de 15e eeuw gegraven als verdedigingsgracht en dankt zijn naam aan een onderdeel van de schutterij dat Kloveniers werd genoemd naar het vuurwapen dat de manschappen gebruikten. In het Frans heette dit een couleuvrine.
De huurprijs is exclusief servicekosten (€ 35,00), gebruik van gas, water, elektriciteit, tv, internet en gemeentelijke heffingen.
Voor meer informatie of het plannen van een bezichtiging kijk op www.ehr.nl, of mail naar [email protected] of bel met ons kantoor 020 208 21 07.





















































