Beschrijving
Whow, op een ronduit geweldige top locatie direct aan de Rivier de Amstel en het sfeervolle recreatie park Somerlust, huur je dit royale en gemeubileerde nieuwbouw appartement op de 2e verdieping gelegen.
Je woont hier in het hippe Amstelkwartier in het stadsdeel Amsterdam-Oost, vlakbij metrostation Spaklerweg. (1 minuut lopen). Het Amstel treinstation ligt op 8 minuten lopen.
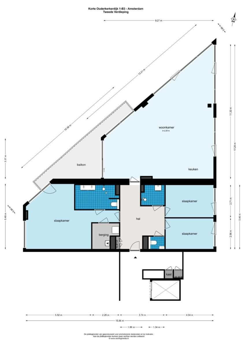
Dit is je kans om het enige beschikbare royale luxe appartement van 163 m², met adembenemend uitzicht over Rivier de Amstel en met privé parkeerplaats, te huren.
De fabelachtige woning is gelegen in HAUT, het hoogste houten gebouw van Nederland, circulaire gebouwd. Met een absoluut laag energieverbruik A++ label, optimaal geïsoleerd, voorzien van zonnepanelen op het dak en op de gevel.
Puur woongenot met panoramisch uitzicht over de Amstel vanuit de Royale living en master bedroom.
Fantastisch buiten terras van 17m2 op het Zuid-Westen gelegen met zicht op prachtige zonsondergangen.
De prachtige gietvloer met luxe en comfortabele vloerverwarming en vloerkoeling is per kamer instelbaar.
Intelligente Domotica is vanaf smartphone of tablet op afstand te bedienen verlichting en zonneschermen, via slimme applicaties.
Privé parkeerplaats in de inpandige garage, gezamenlijke fietsenstalling. De woning is direct vanuit de garage per lift bereikbaar.
Omgeving:
Het Amstelkwartier is een nieuw stuk stad direct aan Rivier de Amstel gelegen met een mooi aanbod van horeca, winkels, goede scholen, sportvoorzieningen, fraaie parkjes en een prachtige jachthaven.
De combinatie van nieuwbouw met historische gebouwen en natuurlijk de ligging maakt het Amstelkwartier tot een ware hotspot van Amsterdam.
Bereikbaarheid:
Direct aan de Amstel, maar ook dichtbij het centrum, gelegen. Het Amstelstation ligt op 8 minuten loopafstand en metrostation Spaklerweg op 1 minuut lopen. Dit metrostation is aangesloten op maar liefst drie lijnen (51, 53 en 54).
Ook met de auto is de Korte Ouderkerkerdijk goed bereikbaar. Binnen enkele minuten is de Ring A-10 (S111) of de A2 te bereiken.
Neem nu contact met ons op voor een live bezichtiging.
De huurprijs is exclusief gebruik, water, elektriciteit, verwarming/koeling en internet.








































































