Beschrijving
SEE ENGLISH TEXT BELOW
TE HUUR PRACHTIG, DESIGNER GESTYLED EN LUXUEUS LOFTACHTIG APPARTEMENT –
IN HET OUDE HART VAN HET CENTRUM VAN HAARLEM
Woonoppervlakte ruim 108m2, 2 slaapkamers, luxe ruime badkamer en tweede slaapkamer met eigen douche, prachtige stalen wand met glas, op maat gemaakte kasten en luiken, luxe inbouwkeuken en een glazen wand met daarop een prachtige foto van het historische centrum van Haarlem.
Werkelijk uniek en one of a kind appartement.
HISTORIE, RENOVATIE EN ONDERHOUD
Midden in het historisch stadshart van Haarlem, in een monumentaal pand, ligt dit kleinschalig luxe appartementencomplex. Het gebouw dateert uit 1872 en is grootschalig en volledig gerenoveerd in 2006. Het gebouw heeft een markante uitstraling en deed in het verleden dienst als meisjeskostschool. Kenmerkend zijn verder de prachtige gevel, de magnifieke entree en de klassieke ruime hal met hoog plafond.
In 2006 is het complex gerenoveerd, gebruikmakend van hoogwaardige materialen en met aandacht voor de authentieke details. Vanaf 2016 is het appartement door de huidige eigenaar, in samenwerking met interieur stylisten, intern verder verbouwd. Zo is het schilderwerk en stucwerk gedaan, maatwerk kasten geplaatst, badkamer meubels vernieuwd, op maat gemaakte stalen boekenkast en op maat gemaakte luiken voor de ramen aangebracht. Bij de slaapkamer op de vide is een stoere stalen wand met glas geplaatst. De tweede slaapkamer heeft een op maat gemaakte bedstede met kast/bergruimte.
Dit appartement lig aan de zijkant van het complex en heeft mede daardoor een prettig en rustig woongevoel. Het appartement heeft verder hoge ramen (2.80m), een plafondhoogte van 4.85m (!) en een videhoogte van 2.33m.
Door de ligging van het appartement aan de zijde van het complex, merk je niet dat je midden in het bruisende hart van Haarlem woont. Alle winkels, restaurants en cafés, theater, schouwburg, bioscoop en andere uitgaansgelegenheden; letterlijk om de hoek.
Dit appartement combineert dus een fantastische ligging en authentieke bouwstijl die modern en luxe gerenoveerd is. Wel de lusten maar niet de lasten van wonen in een monumentaal pand in het historische centrum van Haarlem.
KENMERKEN
Zeer ruimtelijk gevoel door hoge plafonds en hoge ramen
Twee slaapkamers
Ruime badkamer
Tweede slaapkamer met eigen douche en wastafel
Ingebouwde vide met prachtige glazen pui met stalen verdeling
Ruime keuken met keukeneiland
Prachtige houten vloer door het appartement
Dubbel HR++ glas en houten kozijnen
INDELING
Via de luxe centrale entree is het appartement op de eerste etage met de trap te bereiken.
– Hal;
– Toilet met fontein;
– Open luxe keuken met eiland en diverse inbouwapparatuur (waaronder Gaggenau gaskookplaten met wokbrander en tepanyakiplaat, vaatwasser en Küppersbusch oven) en verder veel kastruimte;
– Lichte woonkamer met hoge plafonds, hoge raampartijen met kantel-/kiepramen en op maat gemaakte luiken;
– Slaapkamer met bedstede, eigen douche en wastafel. Bergruimte onder trap naar verdieping.
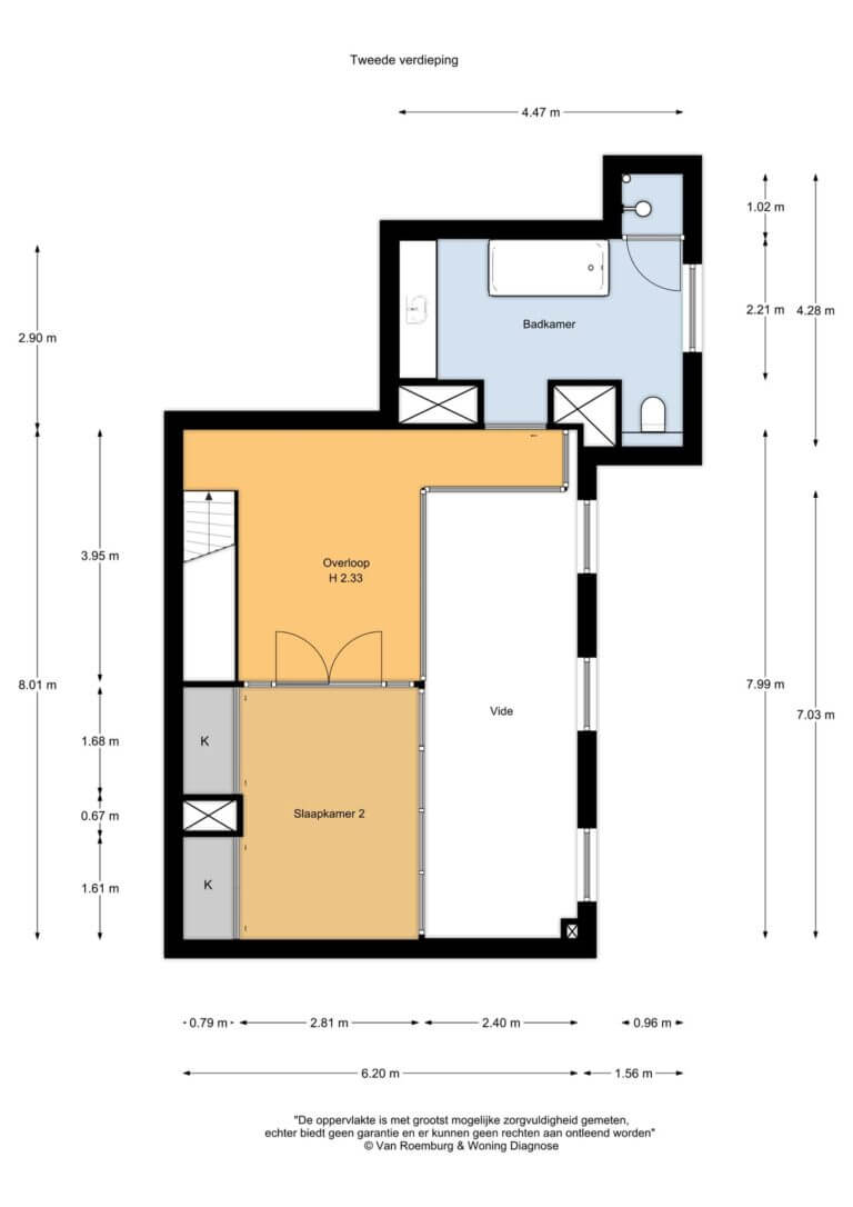
2e etage:
– Zeer royale vide met werkruimte;
– Tweede slaapkamer met kastenwand en stalen wand met glas;
– Ruime badkamer met wastafel, ligbad, douche en 2e toilet.
Hele appartement is voorzien van een houten vloer.
BIJZONDERHEDEN
– Uitstekende ligging midden in het centrum, doch stil;
– Op loopafstand van supermarkten, restaurants terrassen en winkels;
– Op loopafstand van centraal station Haarlem;
– Uitstekend gestoffeerd;
– Zeer goede lichtinval door de hoge ramen;
– Gemeentelijk monument;
– Parkeren op straat middels vergunning of via een huurplaats in een parkeergarage in de buurt;
– Huurprijs € 2.100,00 excl. G/W/E, internet/TV aansluiting en lokale heffingen
– Servicekosten € 50,00
– Borgsom € 4000,00
– Beschikbaar per 3 april 2023
– Minimale huurperiode 12 maanden, aansluitend onbepaalde tijd;
Wilt u een afspraak maken voor een bezichtiging, reageer dan op deze woning. Wij nemen aansluitend contact met u op.
Voor meer informatie kunt u contact opnemen per mail ([email protected]) of telefonisch (+31 622073705)
Team EHR staat voor u klaar.
——————————————————————————————————————————————————————–
BEAUTIFUL, DESIGNER STYLED AND LUXURIOUS LOFT APARTMENT –
IN THE OLD HEART OF THE CENTER OF HAARLEM
Living area over 108m2, 2 bedrooms, luxury spacious bathroom and second bedroom with private shower, beautiful steel wall with glass, custom cabinets and shutters, luxury fitted kitchen and a glass wall with a beautiful photo of the historic center of Haarlem.
Truly unique and one of a kind apartment.
HISTORY, RENOVATION AND MAINTENANCE
This small-scale luxury apartment complex is located in the middle of the historic city center of Haarlem, in a monumental building. The building dates from 1872 and was renovated on a large scale and completely in 2006. The building used to serve as a boarding school for girls in the past. Characteristic are also the beautiful facade, the magnificent entrance and the classic spacious hall with high ceiling.
The complex was renovated in 2006, using high-quality materials and with attention to the authentic details. From 2016, the apartment has been internally renovated by the current owner, in collaboration with interior stylists. The paintwork and stucco have been done, custom cabinets have been installed, bathroom furniture has been renewed, a custom-made steel bookcase and custom-made shutters have been installed in front of the windows. A sturdy steel wall with glass has been placed in the bedroom on the loft. The second bedroom has a custom box bed with cupboard / storage space.
This apartment is located on the side of the complex and therefore has a pleasant and quiet living feeling. The apartment also has high windows (2.80m), a ceiling height of 4.85m (!) And a vide height of 2.33m.
Due to the location of the apartment on the side of the complex, you will not notice that you live in the middle of the bustling heart of Haarlem. All shops, restaurants and cafes, theater, theater, cinema and other entertainment venues; literally around the corner.
This apartment therefore combines a fantastic location and authentic architectural style that has been modern and luxuriously renovated. The joys but not the burden of living in a monumental building in the historic center of Haarlem.
LAYOUT
The apartment on the first floor can be reached by stairs via the luxurious central entrance.
First floor:
– Entrance, hall;
– Toilet with fountain;
– Open luxury kitchen with island and various built-in appliances (including Gaggenau gas hobs with wok burner and tepanyaki plate, dishwasher and Küppersbusch oven) and plenty of cupboard space;
– Bright living room with high ceilings, high windows with tilt/tilt windows and custom-made shutters;
– Bedroom with box bed, private shower and sink. Storage space under stairs to floor.
2nd floor:
– Very spacious loft with workspace;
– Second bedroom with wardrobe and steel wall with glass;
– Spacious bathroom with sink, bath, shower and 2nd toilet.
CHARACTERISTICS
Very spacious feeling through high ceilings and high windows
Two bedrooms
Spacious bathroom
Second bedroom with private shower and sink
Built-in loft with beautiful glass front with steel partition
Spacious kitchen with kitchen island
Renovation in 2006 and in 2016-2018
Beautiful wooden floor throughout the apartment
Double HR ++ glass and wooden frames
LAYOUT
The apartment on the first floor can be reached by stairs via the luxury central entrance.
– Excellent location right in the center, but quiet;
– Within walking distance of supermarkets, restaurants, terraces and shops;
– Within walking distance of Haarlem central station;
– Excellently upholstered;
– Entire apartment has a wooden floor.
– Very good light through the high windows;
– Municipal monument;
– Parking on the street by means of a permit or via a rental place in a parking garage nearby;
– Rental price € 2,100.00 excl. G/W/E, internet/TV connection and local taxes
– Service costs € 50.00
– Deposit € 4,000.00
– Available from April 3rd 2023
– Minimum rental period 12 months, followed by an indefinite period;
Would you like to make an appointment for a viewing, please respond to this property. We will then contact you.
For more information, please contact us by email ([email protected]) or by telephone (+31 622073705)
Team EHR is ready for you.



















































































