Beschrijving
Heerlijk ruim en licht 4-KAMER MAISONNETTE (2 woonlagen) met 3 slaapkamers, 3 balkons in bosrijke omgeving gelegen.
Gelegen op één van de gewildste en groenste locaties van Arnhem-Noord vinden we dit Gemeentelijk Monument. Deze maisonnette is gelegen op de bovenste 2 woonlagen en heeft door de trap een echt ‘huisgevoel’. Door de hoge ligging heeft de woning eveneens een weids, groen uitzicht en biedt het veel privacy. Op beide verdiepingen vinden we aan zowel de voor- als achterzijde een balkon zodat u op elk moment van de dag kunt genieten van de zon en van de omliggende natuur. Grote raampartijen en daardoor veel lichtinval geven de woning het woongenot wat u in een woning zoekt. Aangezien het complex ook nog eens aan het prachtige Park Angerenstein ligt, heeft u een 1e rangs locatie om de 4 jaargetijden op kleurrijke wijze te ervaren. Is het niet binnen, dan kunt u wel buiten op 1 van de drie balkons vertoeven.
INDELING
Begane grond:
Afgesloten entree met intercom met toegang tot de brievenbussen en trapopgang naar boven;
1e woonlaag (4e etage):
Entree/hal met modern toilet, trapkast met de meterkast en bergruimte, sfeervolle woonkamer met schouw, originele inbouwkast en fraai uitzicht, dichte keuken voorzien van net keukenblok met apparatuur (oa. oven, gaskookplaat en vaatwasser) en een authentieke vitrinekast. Vanuit de keuken is er een deur met toegang tot het balkon.
2e woonlaag (5e etage):
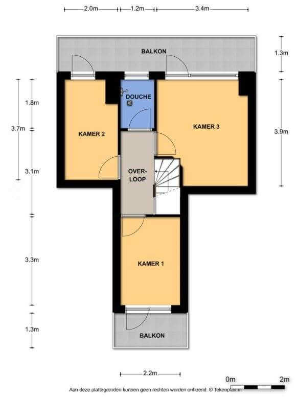
Vanuit de hal de trapopgang naar de bovenverdieping, overloop, 3 slaapkamers waarvan 1 met wasmachine, met ieder toegang tot de balkons, moderne doucheruimte met stijlvol wastafelmeubel, spiegelkast, designradiator en douche.
BIJZONDERHEDEN:
– GEMEUBILEERD
– Schitterend in de natuur gelegen royale maisonnette;
– Opvallend grote raampartijen met fraai vrij uitzicht;
– Maar liefst 3 zonnige balkons, verdeeld over 2 woonlagen;
– Gelegen in een gewilde en karaktervolle wijk Angerenstein;
– Supermarkt is om de hoek gelegen;
– Op 10 minuten fietsafstand van het centrum van Arnhem;
– In nabijheid van bushalte, treinstation en diverse uitvalswegen;
– Ruim voldoende GRATIS parkeergelegenheid;
– Glasvezelaansluiting;
– Beschikbaar vanaf 01-02-2025 voor 12 tot 24 maanden, in overleg na 24 te verlengen.
– Geen huisdieren toegestaan;
– Roken niet toegestaan;
– Geschikt voor eenpersoons gebruik of stellen
– Niet geschikt voor woningdelers/studenten
– Huurprijs is exclusief servicekosten € 65,00 per maand.
– De huurprijs is excl. G/W/E, tv/internet en lokale heffingen.
Heeft u belangstelling in dit mooie gemeubileerde 4-kamerappartement? Stuur een e-mail naar [email protected] om je in te schrijven.





































