Beschrijving
Hoofddorp op uitstekende locatie: Gezellig en licht gestoffeerd appartement, gelegen op de eerste etage met 2 slaapkamers. Op loopafstand van winkelcentrum Floriande en busverbindingen.
Rustig gelegen; geen doorgand verkeer; Eigen schuur. Vrij parkeren.
Het appartement maakt deel uit van een kleinschalig appartementencomplex en ligt in de directe omgeving van winkelcentrum ‘Floriande’. In het wijkwinkelcentrum vindt je o. a. supermarkten, verswinkels, gezondheidscentrum met apotheek, een kruitvat en een Hema. Ook scholen en kinderdagverblijf liggen op loopafstand, evenals de Openbare Bibliotheek en het Haarlemmermeer lyceum.
Recreatieve ontspanning is te vinden in het Haarlemmermeerse bos, De Boseilanden en de Toolenburger Plas; deze zijn binnen een minuut of tien bereikbaar. Ook openbaar vervoer op loopafstand en uitvalswegen richting Amsterdam, Haarlem, Schiphol, Leiden en Den Haag vindt u in de directe omgeving.
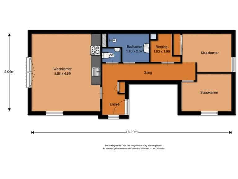
INDELING:
BEGANE GROND:
– Entree met bellentableau
EERSTE ETAGE:
– Hal met toilet
– Lichte woonkamer met openslaande deuren naar Frans balkon;
– Moderne en luxe open keuken met ialle wenselijke inbouwapparatuur (5 pits gasstel, combioven, vaatwasser, koel/vriescombinatie);
– Hoofd slaapkamer met inbouwkast;
– Tweede slaapkamer
– Badkamer met douche;
– Stook/was/bergruimte.
BIJZONDERHEDEN:
– Rustige ligging;
– op loop afstand van winkelcentrum en openbaar vervoer;
– Vrij uitzicht;
– 2 slaapkamers;
– Mooie laminaat vloer door de gehele woning;
– Keuken met alle wenselijke inbouwapparatuur;
– Separate berging;
– Glasvezelkabel;-
– Beschikbaar per 3 november 2023
– Beschikbaar voor maximaal 2 jaar;
– Huur € 1.585,00 excl. g/w/e/tv/internet en locale gebruikersbelastingen;
– Borgsom € 2000.00
Wilt u meer weten over dit appartement, dan kunt u reageren op deze woning of telefonisch of per email contact opnemen met Executive Home Rentals.



































