Beschrijving
Deze royale vrijstaande woning met vrijstaande garage heeft een mooie robuuste uitstraling en is gelegen op een perceel van 374 m². Het originele bouwjaar van de woning is 1980 en is destijds in eigen beheer met kwalitatief goede materialen gebouwd; er is spouw-, vloer- en dakisolatie aangebracht en in 2021 zijn er zonnepanelen geplaatst.
De staat van onderhoud is prima, aan de binnenzijde mag de woning wel gemoderniseerd worden.
De woning is mooi gelegen op de hoek van Pastoor de Grootstraat en Jan Dobbelsteenstraat, heeft een royale lichte woonkamer met een gezellige zithoek met houtkachel. De keuken en de bijkeuken zijn aan de achterzijde van de woning gesitueerd. Op de twee verdiepingen vind je maar liefst vier flinke slaapkamers, een complete badkamer en meer dan voldoende bergruimte.
Loosbroek is goed bereikbaar vanaf de A50, A59 en N279. Daarmee is het dorp aantrekkelijk gelegen t.o.v. steden als ’s-Hertogenbosch, Eindhoven en Nijmegen. Overige dorpen zoals Heeswijk-Dinther, Nistelrode, Uden en Heesch liggen op korte afstand.
Indeling woning
BEGANE GROND
Achter de voordeur vind je een ruime hal met de meterkast (9 groepen, 3 fasestroom en 2 aardlekschakelaars) en de trapopgang naar de eerste verdieping.
Op de vloer ligt Noorse leisteen, welke is doorgelegd in de woonkamer, de wanden bestaan uit schoon metselwerk en tegen het plafond zijn houten schrootjes aangebracht.
Vanuit de hal kun je enerzijds naar de keuken en anderzijds naar de woonkamer.
De woonkamer heeft een balkenplafond en de wanden zijn deels voorzien van schoon metselwerk en granol. De raampartijen aan zowel voor- als achterzijde van de woonkamer zorgen voor een fijne lichtinval en als het buiten wat frisser wordt zorgt de houtkachel voor gezellige warmte.
Vanuit de woonkamer kun je ook naar de keuken.
De keuken heeft een hoek opgesteld keukenblok met een betegeld werkblad en achterwand en de volgende apparatuur:
• 4-pits elektrisch koken
• afzuigkap
• koelkast
• spoelbak met mengkraan
Een kelderkast zorgt voor extra opbergmogelijkheden, op de vloer liggen tegels, het onderste gedeelte van de wanden is betegeld met daarboven sierpleisterwerk. Er is volop plek voor een ruime eethoek.
Direct aan de keuken grenst een praktische bijkeuken met de toiletruimte, een vaste kast en de witgoedaansluitingen, er is ook ruimte voor een diepvries. Ook in de bijkeuken en de toiletruimte ligt een tegelvloer, de wanden zijn deels betegeld en beiden hebben een houten plafond. Vanuit de bijkeuken kun je naar de achtertuin.
EERSTE VERDIEPING
Via de hardhouten trap in de hal bereik je de eerste verdieping.
Op deze verdieping bevinden zich aan de overloop drie ruime slaapkamers (circa 15m², 11m² en 10m²) en de badkamer. Alle slaapkamers hebben ingebouwde kasten. Op de gehele verdieping ligt, met uitzondering van de badkamer, tapijt, de wanden van de overloop bestaan uit schoon metselwerk en sierpleisterwerk, de wanden van de slaapkamers zijn behangen en tegen de plafonds zijn houten schrootjes aangebracht.
De geheel betegelde en complete badkamer is afgewerkt met het volgende sanitair:
• ligbad met thermostaatkraan
• douche met thermostaatkraan
• wastafel met planchet en spiegel
• toilet
De badkamer wordt verwarmd middels een radiator. Deze ruimte kan via te openen ramen en via een ventilatiekanaal worden geventileerd.
TWEEDE VERDIEPING
Een vaste trap op de overloop leidt naar de tweede verdieping.
Vanuit de overloop kunt je naar de vierde slaap- of hobbykamer en een grote praktische bergruimte.
De hoog rendement cv-combiketel is van het merk Bosch HR 107 (2007). Een dakraam zorgt voor daglicht op deze verdieping.
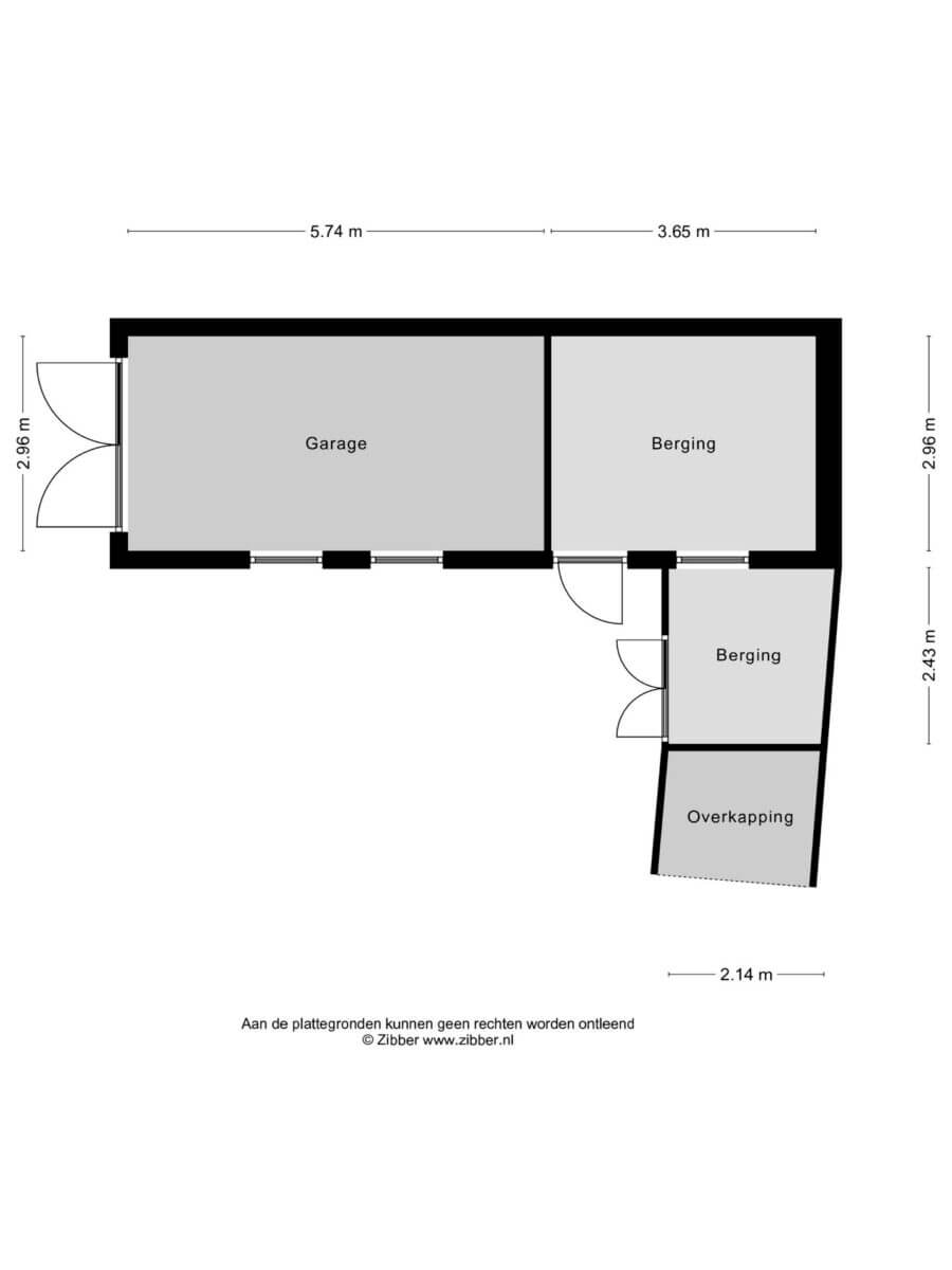
TUIN, GARAGE EN BERGING
De garage (5,74 x 2,96 meter netto) is bereikbaar vanaf de Jan Dobbelsteenstraat middels een twee openslaande deuren. De garage is in spouw gebouwd heeft een bergzolder en is o.a. voorzien van elektra en verlichting.
Op het perceel bevinden zich in totaal nog 4 bergingen welke allen zijn te bereiken vanuit de achtertuin.
De achtertuin is verzorgd aangelegd met gebakken sierbestrating, gras en groenborders.
en heeft veel privacy. Bovendien is er buitenverlichting en elektra aanwezig.
Bijzonderheden
– Praktische ruime woning
– Rustige ligging
– Garage met oprit
– Ideaal voor de handige klusser
– Voorzien van zonnepanelen (8 panelen geplaatst in 2021
– Energielabel C





































































