Beschrijving
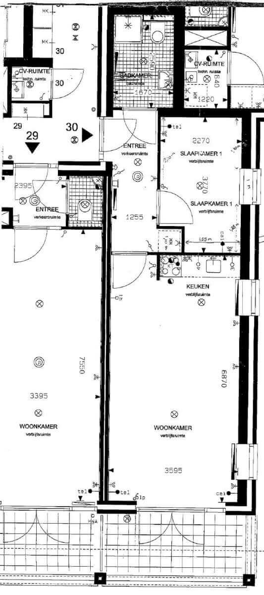
Heerlijke 2 kamer (1 slaapkamer) appartement met zonnig balkon.
Dit kleinschalige en luxe gebouwde complex is van alle gemakken voorzien.
Een afgesloten entree met videofoon systeem, een lift en een ondergelegen parkeergarage.
Hier bevindt zich een eigen parkeerplaats, een eigen berging en een gemeenschappelijke fietsenberging.
De parkeergarage is afgesloten met een elektrisch op afstand bedienbare roldeur en voorzien van een aparte loopdeur.
Omgeving
Het appartementen complex ligt in de wijk Twistvlied tegenover de sportvelden en een wandelpark.
De gezellige Mijdrechtse dorpskern met een gevarieerd winkelaanbod is op 4 minuten fietsafstand!
Mijdrecht ligt op een centrale locatie in een prachtig, landelijk gebied,
Het Groene Hart, tussen Utrecht en Amsterdam. Diverse uitvalswegen zijn op korte afstand. Wonen in Mijdrecht betekent lokale en stadse voorzieningen binnen handbereik.
Autominuten
Amsterdamse Zuidas – 20 min
Amsterdam Centrum – 30 min
Stadshart Amstelveen – 22 min
Schiphol – 26 min
Utrecht Centrum – 30 min
De huurprijs is exclusief de kosten van gebruik g/w/e/internet en gemeentelijke bewonersheffingen.
De garage en berging kunnen erbij gehuurd worden voor €100,- per maand.




























