Beschrijving
Uniek Rijksmonument uit de 18e eeuw gelegen aan de prachtige Singel.
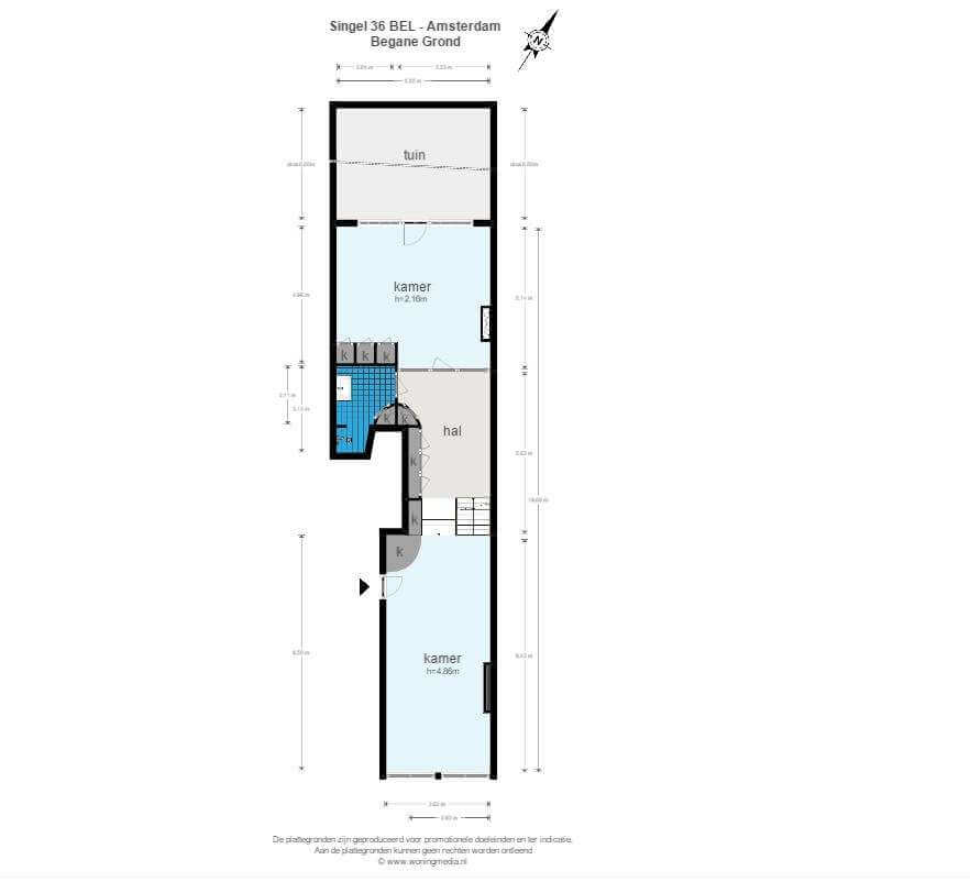
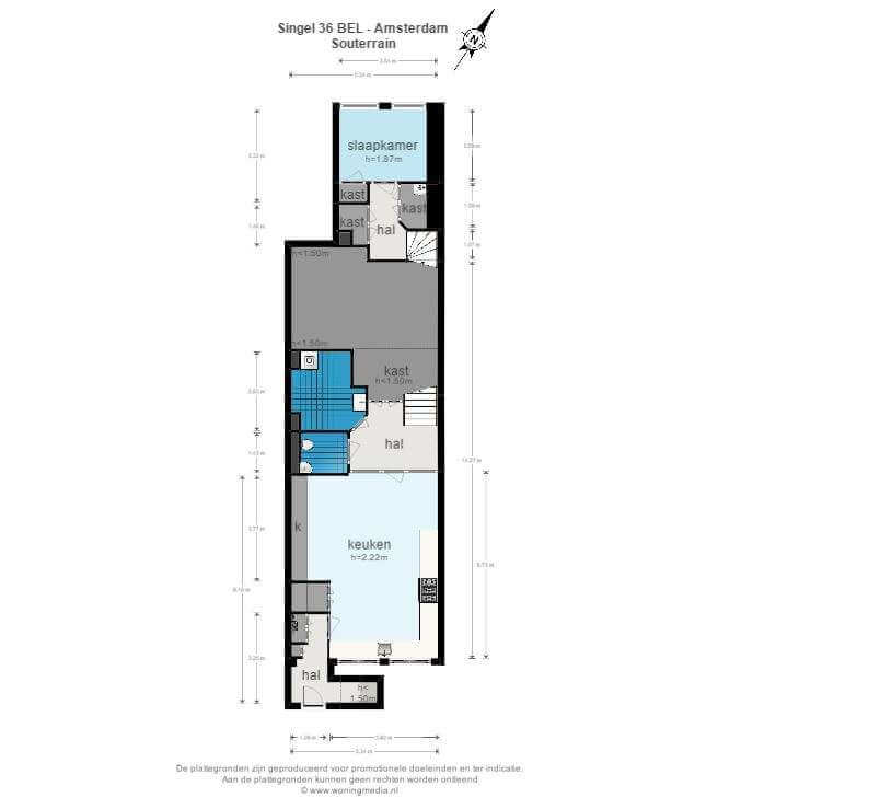
Het prachtig gerenoveerde appartement is gelegen op de bel-etage, eerste verdieping en souterrain.
Het grachtenhuis, genaamd de ‘Zeevrugt’ is gebouwd in 1763 en er zijn meerdere karakteristieke details aanwezig.
Het benedenhuis is voorzien van een deuromlijsting uitgevoerd in Lodewijk XV stijl, prachtige open haarden met schouw, ornament plafond, authentieke parket vloer, marmeren vloeren en paneelluiken. ‘u waant zich 100 jaar terug in de tijd’, een uniek object dat u gezien moet hebben!
INDELING
De entree op de bel etage geeft toegang tot de prachtige marmeren gemeenschappelijke hal. Eenmaal in het appartement treft u de ruime living met hoge ornamenten plafond. De hoge ramen voorzien van rolluiken geven een prachtig uitzicht over de gracht.
De kamer met open haard aan de achterzijde van het appartement kijkt uit op de patiotuin van circa 36 m2.
De woonkeuken bevindt zich in het souterrain van het appartement en is van alle gemakken voorzien met o.a. een dubbele ijskast, 5 pit gasfornuis met een marmeren blad.
De tweede slaapkamer biedt toegang tot de sfeervolle patiotuin. In het souterrain is de kleine derde slaapkamer aanwezig.
De marmeren badkamer is voorzien van inloopdouche en wastafel.



































































